Projekte

Lässig und robust

Anbau mit Terrakottafassade in Los Angeles von Current Interests

Mit dem Erweiterungsbau an ein bestehendes Wohnhaus würdigt das Team von Current Interests einmal mehr die Qualität handwerklich gefertigter Oberflächen in der Architektur. Wie schon in anderen Projekten beweisen sie Innovation und Kreativität. Die Terrakottafliesen der Fassade sind Unikate.

von Uta Gelbke, 07.01.2026

Beim Begriff Terrakotta denkt man unweigerlich an rotbraune Blumentöpfe oder in die Jahre gekommene Fliesenböden in einer mallorquinischen Finca. In dem Wort schwingt eher jahrzehntealter Muff mit statt Innovation. Das Terracotta House in Los Angeles, entworfen von  Matthew Au und Mira Henry vom Büro Current Interests, überrascht dagegen mit einer völlig neuen Interpretation dieses traditionsreichen Materials. Im beschaulichen Stadtteil Leimert Park, einem Wohnviertel aus den 1920er-Jahren mit – typisch für LA – schnurgeraden Straßen und einem scheinbar endlosen Teppich von eingeschossigen Wohnhäusern, verpassen sie einem Bestandsbau ein zeitgenössisches Makeover.

Flächentausch 
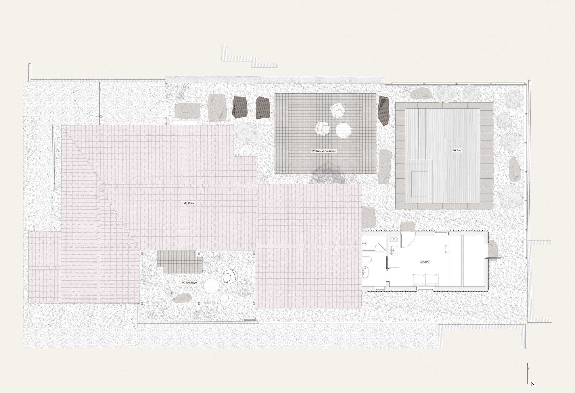
Das Gebäude im Spanish-Colonial-Revival-Stil mit roten Dachziegeln hatte durchaus eine architektonische Qualität. Jedoch schränkte die separat angeordnete Garage im hinteren Bereich des Grundstücks die Gartennutzung ein und schnitt die seitliche Auffahrt vom restlichen Außenbereich ab. Current Interests wurden beauftragt, das Grundstück neu zu strukturieren, die Wohnfläche durch einen Anbau zu erweitern und zugleich die Anordnung und Gestaltung der Freiflächen rund um das Haus zu verbessern. Dafür wurden die bebaute und unbebaute Fläche hinter dem Haus getauscht: In linearer Fortsetzung des Wohnhauses wurde ein neuer Baukörper ergänzt und anstelle der Garage ein Pool mit großer Terrasse angelegt. Der Anbau bietet Platz für eine vollständige zusätzliche Wohneinheit und öffnet sich zum neu angelegten Garten mit einer Fülle einheimischer Pflanzen.

Materialexperimente
Das vorhandene Dach mit Terrakotta-Deckung diente als Inspiration für die Fassade des neuen Baus. Daraus leiteten die Architekt*innen ein Fassadenmodul ab, das in Kooperation mit Sandkuhl Clayworks, einem Hersteller von Tonbauteilen, weiterentwickelt und produziert wurde. Terracotta House ist nicht die erste Bauaufgabe, bei der Au und Henry das Projekt zum Anlass für eine eingehende Materialstudie nehmen. Sie verfügen über umfangreiche Erfahrungen in der Entwicklung neuer Oberflächen; zu den bisher im Rahmen ihrer Bauprojekte erforschten Materialien zählen unter anderem Betonzuschlag und Keramikguss. Für den Anbau in Leimert Park entstand eine neue Fliese, indem ein Standard-Terrakotta-Hohlblockstein mit drei Kammern unmittelbar nach dem Extrudieren und noch im feuchten Zustand mittig mit Draht geschnitten wurde. Das Ergebnis ist eine Toneinheit mit markanten vertikalen Rippen auf der einen Seite und einer flachen Oberfläche auf der anderen. Nach dem Brennen wurden die Fliesen im eigenen Werkstattatelier von Au und Henry mit einem tiefgrünen Pigment beschichtet.

Fassadentextur
Der Anbau ist als Holzrahmenbau mit vorgehängter Fassade konzipiert. Trotz geringer Größe des Baukörpers sollte die Fassade robust und mächtig erscheinen. Die grüngrauen Terrakotta-Module sind an einem zweischichtigen Aluminiumrahmen befestigt. Durch den mittigen Versatz und die offenen Fugen mit unterschiedlicher Breite erinnert die Fassade an eine Materialauslage im Bauhandel. Dieser Eindruck eines lose gefügten Materialstapels ist beabsichtigt und ein herausstechendes Merkmal des Projekts.

Wohlfühlraum
Im Innenraum setzt sich die grobe Struktur und gedämpfte Farbigkeit der Fassade fort. Die Wände sind mit geölten Sperrholzplatten verkleidet. Ein grüngrau pigmentierter, polierter Estrichboden mit passenden Zuschlägen, graubraune Fliesen im Bad mit wolkiger Farbintensität und passgenaue Einbauten mit sandfarbener Lackierung erzeugen ein farblich abgestimmtes Gesamtbild, das an wilde Naturräume erinnert und eine schützend umhüllende Wärme ausstrahlt. Auch für die Details des Innenraums wie etwa die hochgezogene Sockelleiste gingen die Architekt*innen selbst ans Werk, um über eigene Materialtests die richtige Oberfläche zu bestimmen. Terracotta House ist das Resultat einer engen Kooperation aller Projektbeteiligten und würdigt die Qualität des Handwerks in der Architektur.

Facebook Twitter Pinterest LinkedIn Mail
Projektinfos
Projektname Terracotta House
Entwurf Current Interests
Projektteam Matthew Au, Mira Henry, Corie Yaguchi, Austin Andersen, Jixun Wen, Erik Tsurumaki, Pan Tan, Omid Dorrani 
Fertigstellung  2024
Links

Entwurf

Current Interests

currentinterestsla.com

Mehr Projekte

Kanso in Barcelona

Japanische Wohntraditionen prägen ein Apartment von Miriam Barrio

Japanische Wohntraditionen prägen ein Apartment von Miriam Barrio

Lauschendes Alpenchalet

Maison Osaïn verwandelt eine historische Berghütte in Italien

Maison Osaïn verwandelt eine historische Berghütte in Italien

Neuanfang durch Wiederaufbau

Transformation eines Einfamilienhauses in Slowenien von OFIS

Transformation eines Einfamilienhauses in Slowenien von OFIS

Auf alles vorbereitet

Wohnanlage mit flexiblen Grundrissen von STAR strategies + architecture

Wohnanlage mit flexiblen Grundrissen von STAR strategies + architecture

Bauhaus-Comeback in Budapest

Umbau einer Dreißigerjahre-Wohnung von Sarolta Hüttl

Umbau einer Dreißigerjahre-Wohnung von Sarolta Hüttl

Zwischen Himmel und Holz

Dachbodenausbau von studio franz und coco in den Schweizer Bergen

Dachbodenausbau von studio franz und coco in den Schweizer Bergen

Mit Hang zur Höhe

Wohnhaus auf kleiner Fläche in Unterfranken von ToB.Studio

Wohnhaus auf kleiner Fläche in Unterfranken von ToB.Studio

Pleats please!

Das W House in London von Bureau de Change

Das W House in London von Bureau de Change

Bio-Bau am Seeufer

Haus A/Z am Ammersee von Arnold / Werner Architekten

Haus A/Z am Ammersee von Arnold / Werner Architekten

Naturpanorama in Costa Rica

Wohnhaus von Formafatal mitten im Dschungel

Wohnhaus von Formafatal mitten im Dschungel

Minimalismus am Waldrand

Der Bungalow U7A von KANANI verbindet Architektur und Natur

Der Bungalow U7A von KANANI verbindet Architektur und Natur

Ein-Euro-Haus

Modernisierung eines baufälligen Stadthauses in Sizilien von Studio Didea

Modernisierung eines baufälligen Stadthauses in Sizilien von Studio Didea

Ein Haus für perfekte Gastgeber

Küchenanbau von Studio McW in London

Küchenanbau von Studio McW in London

Beton, Farbe und Licht

Wohnsiedlung Rötiboden von Buchner Bründler Architekten am Zürichsee

Wohnsiedlung Rötiboden von Buchner Bründler Architekten am Zürichsee

Goldener Schnitt

Einfamilienhaus von Raúl Sánchez Architects bei Barcelona

Einfamilienhaus von Raúl Sánchez Architects bei Barcelona

Der Flur als Bühne

Wohnungsumbau in Mailand von Kick.Office

Wohnungsumbau in Mailand von Kick.Office

Höhenflug in Madrid

Burr Studio verwandelt Gewerbefläche in eine loftartige Wohnung

Burr Studio verwandelt Gewerbefläche in eine loftartige Wohnung

Camouflage im Eichkamp

Berliner Familienresidenz von Atelier ST

Berliner Familienresidenz von Atelier ST

Mid-Century im Stadthaus

Renovierung und Erweiterung eines Hauses in Barcelona

Renovierung und Erweiterung eines Hauses in Barcelona

Lautner, but make it Cape Town

In den Fels gebaute Villa Lion’s Ark an der Küste Südafrikas

In den Fels gebaute Villa Lion’s Ark an der Küste Südafrikas

Ein Zuhause aus Licht und Pflanzen

Umbau einer Sechzigerjahre-Wohnung in Mailand von SOLUM

Umbau einer Sechzigerjahre-Wohnung in Mailand von SOLUM

Wohnen in Blockfarben

Umbau einer Scheune bei Barcelona von h3o Architects

Umbau einer Scheune bei Barcelona von h3o Architects

Olympisches Raumspiel

Reihenhaus-Renovierung im Olympischen Dorf München von birdwatching architects

Reihenhaus-Renovierung im Olympischen Dorf München von birdwatching architects

Ganz der Kunst gewidmet

Atelier für eine Malerin in Germantown von Ballman Khapalova

Atelier für eine Malerin in Germantown von Ballman Khapalova

Heiter bis holzig

Zweigeschossiges Wohnhaus mit Farbakzenten im Hudson Valley von nARCHITECTS

Zweigeschossiges Wohnhaus mit Farbakzenten im Hudson Valley von nARCHITECTS

Kreative Transformationen

Nachhaltiges Bauen mit regionalen Ressourcen und innovativen Produkten von JUNG

Nachhaltiges Bauen mit regionalen Ressourcen und innovativen Produkten von JUNG

Von der Enge zur Offenheit

Filmreifer Wohnungsumbau in Madrid von GON Architects

Filmreifer Wohnungsumbau in Madrid von GON Architects

Leben im Schweinestall

Historisches Stallgebäude wird modernes Familienheim

Historisches Stallgebäude wird modernes Familienheim

Surferträume im Reihenhaus

Umbau eines Sechzigerjahre-Wohnhauses in Norwegen von Smau Arkitektur

Umbau eines Sechzigerjahre-Wohnhauses in Norwegen von Smau Arkitektur

Wabi-Sabi am Hochkönig

Boutiquehotel stieg’nhaus im Salzburger Land von Carolyn Herzog

Boutiquehotel stieg’nhaus im Salzburger Land von Carolyn Herzog