Projekte

Zweigeteilter Rückzugsort

Umbau eines kleinen Erdgeschossapartments in Paris von atelier apara

Nicht weit entfernt vom Canal Saint-Martin befindet sich im Erdgeschoss eines Mehrfamilienhauses eine 42-Quadratmeter-Wohnung, die wie eine schützende Oase der Ruhe inmitten des pulsierenden 10. Pariser Arrondissements wirkt. Doch das war nicht immer so.

von Jana Herrmann, 14.01.2026

Als Teil eines ehemaligen Künstlerateliers in einem typischen Haussmann-Gebäude verfügten die Räumlichkeiten zwar über einen gewissen Charme, wirkten jedoch stets dunkel und beengt. Nach einem großflächigen Wasserschaden wandte sich die Eigentümerin Maud an das ortsansässige Architekturbüro atelier apara: Ihre Wohnung, in der sie bereits seit vielen Jahren lebte, sollte umfassend renoviert werden und anschließend mehr Wärme, Geborgenheit sowie Komfort bieten.


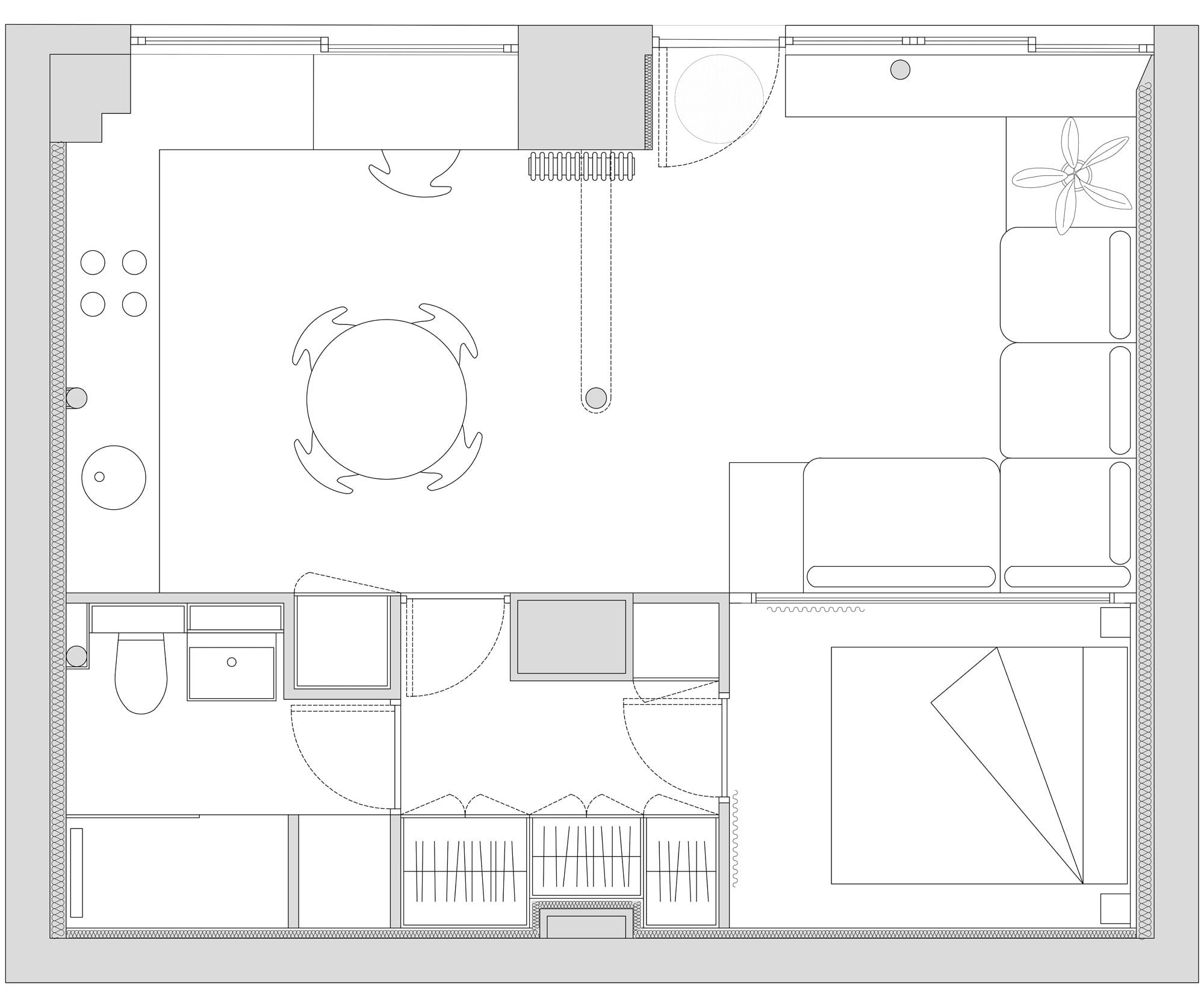
Ein Grundriss mit zwei Zonen
Für die Umsetzung dieser Wünsche interpretierten die Planer*innen den Grundriss neu und teilten die insgesamt 42 Quadratmeter in zwei komplementäre Zonen auf. Der vordere, zum Innenhof orientierte Bereich beherbergt nun einen offenen, behaglichen Wohn-, Ess- und Küchenraum. Parallel dazu ist der privatere Teil der Wohnung mit begehbarem Kleiderschrank, Schlafzimmer und Bad angeordnet.

Zwischen Perriand, Skandinavien und Japan
Für die Gestaltung des Wohnbereichs ließ sich das Team von atelier aspara von den funktionalen Ideen der französischen Architektin und Designerin Charlotte Perriand sowie skandinavischen und japanischen Einflüssen inspirieren: Die Atmosphäre wird geprägt von Kalkfarbe, poliertem Beton und durchgehenden Holzmaserungen. Das Herzstück des Wohnzimmers ist eine maßgefertigte Eckbank, die sich entlang zweier Wände erstreckt und als multifunktionales Raumwunder entpuppt: Unter den Sitzflächen verbergen sich Schubladen, ein ausziehbares Gästebett und zusätzlicher Stauraum.


Kompakte Küche mit Mehrfachfunktion
Auch die Küche folgt dem Prinzip der eleganten Einfachheit. Maßgefertigte Einbauten aus Okoumé-Sperrholz bilden ein durchgängiges Gestaltungselement und werden ergänzt durch eine helle Keramikarbeitsplatte. Direkt unter dem Fenster befindet sich ein modularer Arbeitsplatz, dessen aufklappbare Tischplatte zusätzliche Fläche schafft. Eine weitere Holzplatte, die zwischen der Wand und einer frei stehenden Säule befestigt ist, markiert den Übergang zum Essbereich und kann bei Bedarf als Wäscheständer genutzt werden.

Ein privater Bereich wie eine Hotelsuite
Der Weg in den privaten Teil führt durch einen begehbaren Kleiderschrank im Stil einer Hotelsuite. Dieser wurde mit deckenhohen Schränken und integrierter Beleuchtung ausgestattet. Da das Schlafzimmer ursprünglich kein Tageslicht erhielt, sorgt nun eine vertikal verschiebbare Glaswand dafür, dass das Licht aus dem vorderen Wohnbereich ins Innere fällt und die beiden Zonen optisch miteinander verbindet. Schlichte Holzrahmen und integrierte Regale schaffen eine ruhige, aufgeräumte Atmosphäre, während Wandleuchten von Charlotte Perriand ein warmes, weiches Licht erzeugen. „Bei künstlicher Beleuchtung wirkt der Schlafbereich vom Wohnraum aus betrachtet wie eine Art Leuchtkasten“, beschreibt Charlotte Guillochon, Architektin und Mitgründerin des Büros atelier apara, das renovierte Zuhause ihrer Auftraggeberin.

Diese ließ die Umgestaltung jedoch nicht nur ausführen, sondern brachte sich als gelernte Schreinerin auch aktiv ein. „Maud hat wertvolle Ideen geliefert, die unser Konzept deutlich verfeinert haben“, sagt Charlotte Guillochon. „Dadurch ist ein Apartment entstanden, in dem jedes Regal, jede Schublade und viele Details ihre funktionale, persönliche und klare Handschrift tragen.“

Facebook Twitter Pinterest LinkedIn Mail
Projektinfos
Kunde: Private Bauherrschaft    
Projektleitung: Atelier Apara   
Fläche: 42 m²    
Budget: 97.000 € ohne MwSt.  
Jahr: 2024
Bestehende Energieeffizienzklasse: E
Endgültige Energieeffizienzklasse: C

Mehr Projekte

Sensibel, aber kompromisslos

Ferienhaus von STEINBAUER architektur+design in Waidmannsbach

Ferienhaus von STEINBAUER architektur+design in Waidmannsbach

Hinter die Fassade geschaut

Umbau in Ostflandern: Objekt Architecten im Dialog zwischen Tradition und Moderne

Umbau in Ostflandern: Objekt Architecten im Dialog zwischen Tradition und Moderne

Fort im Forst

Ringbau von Fernanda Canales im mexikanischen Valle de Bravo

Ringbau von Fernanda Canales im mexikanischen Valle de Bravo

Räume ohne Raster

Ein radikal geöffneter Grundriss von RDTH architekti in Prag

Ein radikal geöffneter Grundriss von RDTH architekti in Prag

Wohnen in der Beletage

Umbau einer Altbauwohnung in Charlottenburg von Batek Architekten

Umbau einer Altbauwohnung in Charlottenburg von Batek Architekten

Grauzone mit Aussicht

Puristisches Rooftop-Apartment von unprofessional.studio in Taipeh

Puristisches Rooftop-Apartment von unprofessional.studio in Taipeh

Generationswechsel im Siedlungshaus

atelier brum baut Kölner Reihenhaus in offenen Wohnbau um

atelier brum baut Kölner Reihenhaus in offenen Wohnbau um

Transluzenter Blockbau

Wohnturm aus Glas und Gitter von Studioninedots in Amsterdam

Wohnturm aus Glas und Gitter von Studioninedots in Amsterdam

Skulpturaler Unterschlupf

Nachhaltige Holzhütte in den Pyrenäen

Nachhaltige Holzhütte in den Pyrenäen

Helix aus Stahl

Architettura Tommasi gestaltet Loft in historischem Adelspalast in Padua

Architettura Tommasi gestaltet Loft in historischem Adelspalast in Padua

Glutroter Kokon

Reihenhaus-Modernisierung von Pablo Sanchez Lopez in London

Reihenhaus-Modernisierung von Pablo Sanchez Lopez in London

Beton und Behaglichkeit

BekArch transformiert eine Prager Backstube in ein helles Studio-Apartment

BekArch transformiert eine Prager Backstube in ein helles Studio-Apartment

Urbaner Lückenfüller

Zwei Wohnbauten von Pend in Edinburgh

Zwei Wohnbauten von Pend in Edinburgh

Fifty Shades of Marble

Mistovia verwandelt einen Krakauer Rohbau in ein Zuhause mit Atelier

Mistovia verwandelt einen Krakauer Rohbau in ein Zuhause mit Atelier

Haus der Gegensätze

Architektura baut in der Nähe von Prag ein ungewöhnliches Familiendomizil im Wald

Architektura baut in der Nähe von Prag ein ungewöhnliches Familiendomizil im Wald

Holz in Bewegung

Wohnhaus im Tessin mit außergewöhnlichem Parkett

Wohnhaus im Tessin mit außergewöhnlichem Parkett

Brücke zum Meer

Wochenendhaus von Omer Arbel in Kanada

Wochenendhaus von Omer Arbel in Kanada

Ziegel im Zentrum

Umbau eines Siedlerhauses in der Uckermark von Klöpfel Zeimer Architekten

Umbau eines Siedlerhauses in der Uckermark von Klöpfel Zeimer Architekten

Zwischen Erhalt und Erneuerung

Umbau eines Fischerhauses von Bea Portabella und Jordi Pagès in Cadaqueés

Umbau eines Fischerhauses von Bea Portabella und Jordi Pagès in Cadaqueés

Licht im Laub

Wohnhaus mit Anbau von ConForm in London

Wohnhaus mit Anbau von ConForm in London

Renaissance auf Mallorca

Umbau eines historischen Stadtpalais von Nøra Studio

Umbau eines historischen Stadtpalais von Nøra Studio

Zeitlos in Valencia

Balzar Arquitectos gestalten eine Altbauwohnung mit Wabi-Sabi-Ästhetik

Balzar Arquitectos gestalten eine Altbauwohnung mit Wabi-Sabi-Ästhetik

Präziser Eingriff im Bestand

Umbau eines Einfamilienhauses im St. Galler Rheintal von Studio Micha Gamper

Umbau eines Einfamilienhauses im St. Galler Rheintal von Studio Micha Gamper

Neue Freiheit

Umbau eines Madrider Wohnhauses von Extrarradio

Umbau eines Madrider Wohnhauses von Extrarradio

Wohnen zwischen den Klimazonen

Apartments für Studierende von EMI Architekt*innen in Regensdorf

Apartments für Studierende von EMI Architekt*innen in Regensdorf

Blaues Herz

Umbau eines Weinguts in Portugal von Arquitectura-G

Umbau eines Weinguts in Portugal von Arquitectura-G

Der Sonne entgegen

Nachhaltiges Einfamilienhaus in Holzrahmenbauweise an der Costa Brava von Clara Crous Arquitectura

Nachhaltiges Einfamilienhaus in Holzrahmenbauweise an der Costa Brava von Clara Crous Arquitectura

Glashaus mit vielen Gesichtern

Kresta Garden House von Lucas y Hernández-Gil bei Madrid

Kresta Garden House von Lucas y Hernández-Gil bei Madrid

Gekonnt gegliedert

Wohnungsumbau von DG Estudio in Valencia

Wohnungsumbau von DG Estudio in Valencia

Platte mit Weitblick

Umbau im Berliner Hochhaus von Christopher Sitzler

Umbau im Berliner Hochhaus von Christopher Sitzler