Projekte

Neuanfang durch Wiederaufbau

Transformation eines Einfamilienhauses in Slowenien von OFIS

Mit neuen Materialien und alten Proportionen bauten die Architekt*innen von OFIS ein Einfamilienhaus am Stadtrand von Ljubljana erst ab und dann wieder auf. Das Umbauprojekt verbindet luftige Räume mit Respekt für den Bestand.

von Judith Jenner, 17.12.2025

Zwischen 1965 und 1982 entstand in Slowenien mit Naselje Murgle eines der größten architektonischen Experimente der Nachkriegszeit. Die nahezu autofreie Siedlung mit kleinen Einfamilienhäusern aus Holz proklamiert mit ihren praktischen Grundrissen einen einfachen Lebensstil. Sie ist so angeordnet, dass möglichst wenig Bäume in dem ehemaligen Sumpfgebiet gefällt werden mussten. Beeindruckt von skandinavischen Vorbildern, arbeiteten die Architekt*innen Ivan und Marta Ivanšek mit vorgefertigten Bauelementen und einer nordischen Ästhetik. Bis heute ist das Viertel ein beliebtes Wohngebiet. Doch wie lässt sich sein Charme aufrechterhalten, wenn Privatbesitzer*innen die in die Jahre gekommenen Häuser individuell an die Erfordernisse der Gegenwart anpassen wollen?

Radikal und zurückhaltend
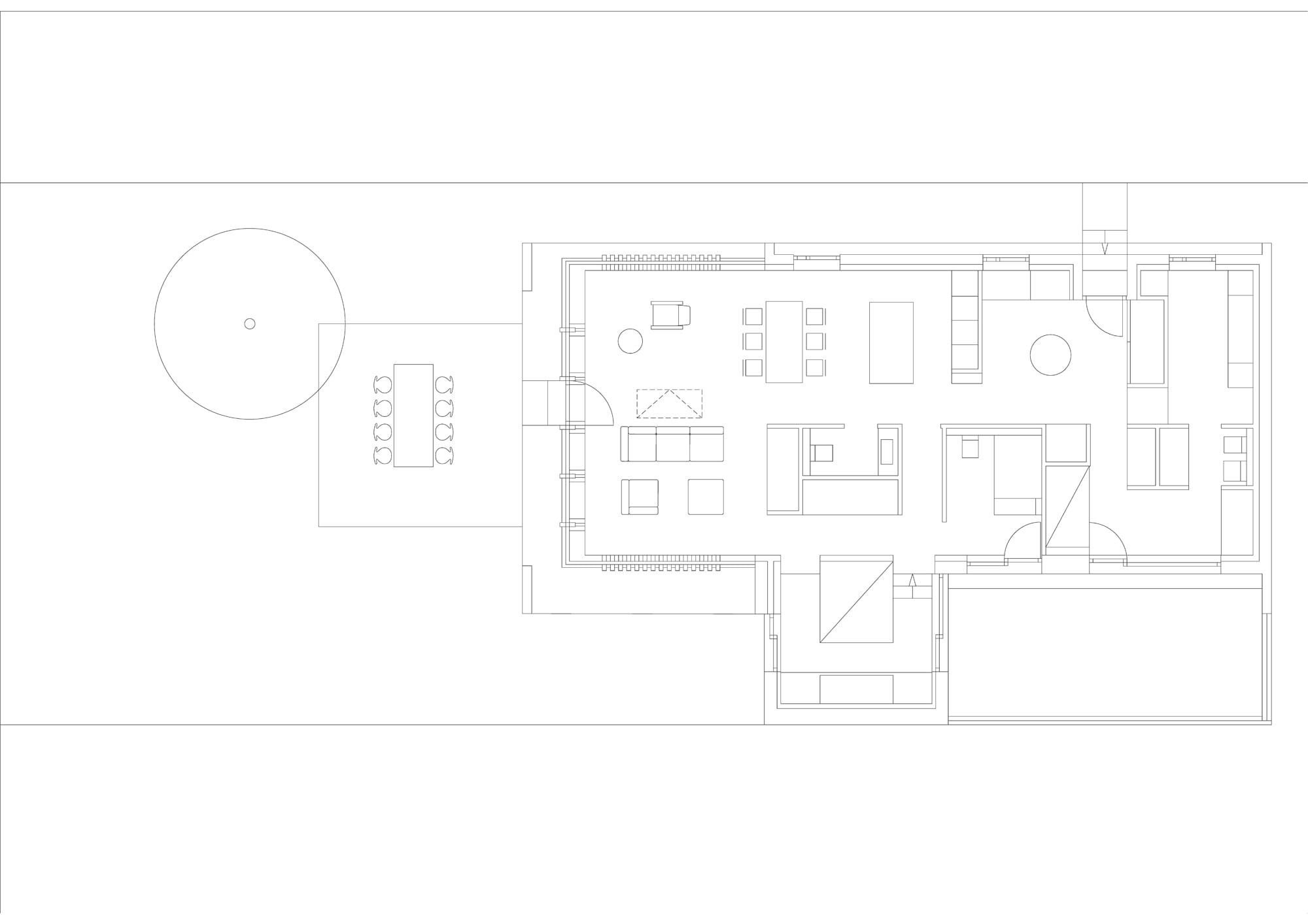
Dieser Herausforderung stellte sich das Architekturbüro OFIS. Der Umbau eines am Rand der Siedlung stehenden Hauses mit Zugang zu einem Park sollte vor allem eins mit sich bringen: mehr Platz. Weil in der Fassadenverkleidung und den Dachziegeln Asbest verbaut war und auch die Holzkonstruktion nicht mehr heutigen Anforderungen entsprach, entschlossen sich die Planer*innen zu einem radikalen Schritt. Sie bauten das Haus ab, nur um es mithilfe von Brettsperrholz mit einem erweiterten Grundriss wieder aufzubauen. Die Proportionen und der charakteristische Minimalismus blieben dabei erhalten. „Die neue Struktur ist ökologisch, luftdicht und thermisch robust – aber ihre architektonische Präsenz bleibt bewusst zurückhaltend“, erklärt der Architekt Rok Oman, der OFIS vor 25 Jahren mit seiner Kollegin Špela Videčnik gegründet hat. „Das Ziel war nicht, Murgle neu zu gestalten, sondern einen Teil davon zu reparieren, ohne das Gesamtbild zu stören.“

Anbau mit Aussicht
Die Westseite des neuen House under the Poplars (zu Deutsch: Haus unter den Pappeln) öffnet sich zu einem Park mit einer Konstruktion, die an ein Gewächshaus erinnert. Rok Oman spricht von einem „Raum aus Holz und Glas unter einem lang gestreckten Dach, der Alt und Neu zu einer einzigen Silhouette verbindet“. Eingefasst wird die Glasfassade von zwei Säulen aus Ziegeln, die die Verbindung zum ursprünglichen Bau herstellen. Der auf diese Weise erweiterte Wohnraum dient als Pufferzone zwischen Innen- und Außenbereich. Eine direkt davor stehende Birke konnte erhalten werden, indem das Fundament Platz für ihre Wurzeln lässt. Damit folgt das Team von OFIS der Murgle-Philosophie eines „Designs mit Bäumen“.

Offenheit und Rückzug
Der große Wohnraum erhält durch die mit Holz verkleidete Decke eine warme Atmosphäre und unterstreicht die skandinavischen Einflüsse. Ein großer Kamin spendet Wärme. Der in den Boden eingelassene Weinkeller ist durch eine transparente Scheibe mit dem Raum verbunden. Mit dem offenen Grundriss werden die Architekt*innen dem Bedürfnis der Bauherr*innen nach Gemeinschaft gerecht. Zwei Schlafzimmer mit Bad sowie ein kleines Arbeitszimmer bilden die Rückzugsbereiche des Hauses.

Trotz des Umbaus hat das House unter the Poplars seinen Charme nicht eingebüßt. Eine „kollektive Lowtech-Intelligenz“ und der „Murgle-Archetyp“ dienten als konsequente Richtschnur für den Umbau von OFIS. Das Haus entspricht nun hohen zeitgenössischen Standards und bewahrt gleichzeitig die Bescheidenheit, Klarheit und menschliche Dimension, die die Siedlung ausmachen.

Facebook Twitter Pinterest LinkedIn Mail
Projektinfos
Architektur Original Ivan und Marta Ivanšek
Umbau OFIS arhitekti
Team Rok Oman, Špela Videčnik, Janez Martinčič, Andrej Gregorič, Matej Krajnc, Borut Bernik, Rok Dolinšek, Giulia Sgro
Fertigstellung 2025
Links

Entwurf

OFIS arhitekti

ofis.si

Mehr Projekte

Beton und Behaglichkeit

BekArch transformiert eine Prager Backstube in ein helles Studio-Apartment

BekArch transformiert eine Prager Backstube in ein helles Studio-Apartment

Urbaner Lückenfüller

Zwei Wohnbauten von Pend in Edinburgh

Zwei Wohnbauten von Pend in Edinburgh

Fifty Shades of Marble

Mistovia verwandelt einen Krakauer Rohbau in ein Zuhause mit Atelier

Mistovia verwandelt einen Krakauer Rohbau in ein Zuhause mit Atelier

Haus der Gegensätze

Architektura baut in der Nähe von Prag ein ungewöhnliches Familiendomizil im Wald

Architektura baut in der Nähe von Prag ein ungewöhnliches Familiendomizil im Wald

Holz in Bewegung

Wohnhaus im Tessin mit außergewöhnlichem Parkett

Wohnhaus im Tessin mit außergewöhnlichem Parkett

Brücke zum Meer

Wochenendhaus von Omer Arbel in Kanada

Wochenendhaus von Omer Arbel in Kanada

Ziegel im Zentrum

Umbau eines Siedlerhauses in der Uckermark von Klöpfel Zeimer Architekten

Umbau eines Siedlerhauses in der Uckermark von Klöpfel Zeimer Architekten

Zwischen Erhalt und Erneuerung

Umbau eines Fischerhauses von Bea Portabella und Jordi Pagès in Cadaqueés

Umbau eines Fischerhauses von Bea Portabella und Jordi Pagès in Cadaqueés

Licht im Laub

Wohnhaus mit Anbau von ConForm in London

Wohnhaus mit Anbau von ConForm in London

Renaissance auf Mallorca

Umbau eines historischen Stadtpalais von Nøra Studio

Umbau eines historischen Stadtpalais von Nøra Studio

Zeitlos in Valencia

Balzar Arquitectos gestalten eine Altbauwohnung mit Wabi-Sabi-Ästhetik

Balzar Arquitectos gestalten eine Altbauwohnung mit Wabi-Sabi-Ästhetik

Präziser Eingriff im Bestand

Umbau eines Einfamilienhauses im St. Galler Rheintal von Studio Micha Gamper

Umbau eines Einfamilienhauses im St. Galler Rheintal von Studio Micha Gamper

Neue Freiheit

Umbau eines Madrider Wohnhauses von Extrarradio

Umbau eines Madrider Wohnhauses von Extrarradio

Wohnen zwischen den Klimazonen

Apartments für Studierende von EMI Architekt*innen in Regensdorf

Apartments für Studierende von EMI Architekt*innen in Regensdorf

Blaues Herz

Umbau eines Weinguts in Portugal von Arquitectura-G

Umbau eines Weinguts in Portugal von Arquitectura-G

Der Sonne entgegen

Nachhaltiges Einfamilienhaus in Holzrahmenbauweise an der Costa Brava von Clara Crous Arquitectura

Nachhaltiges Einfamilienhaus in Holzrahmenbauweise an der Costa Brava von Clara Crous Arquitectura

Glashaus mit vielen Gesichtern

Kresta Garden House von Lucas y Hernández-Gil bei Madrid

Kresta Garden House von Lucas y Hernández-Gil bei Madrid

Gekonnt gegliedert

Wohnungsumbau von DG Estudio in Valencia

Wohnungsumbau von DG Estudio in Valencia

Platte mit Weitblick

Umbau im Berliner Hochhaus von Christopher Sitzler

Umbau im Berliner Hochhaus von Christopher Sitzler

Bewegung im Rohbau

Achtsamkeitsstudio ANTI im Brandlhuber-Haus in Berlin

Achtsamkeitsstudio ANTI im Brandlhuber-Haus in Berlin

Athener Essenz

Sensible Stadthaus-Modernisierung von Local Local

Sensible Stadthaus-Modernisierung von Local Local

Domestic Dancefloor

Clubkultur in einem Berliner Apartment von Studio Karhard

Clubkultur in einem Berliner Apartment von Studio Karhard

Ein Haus aus Lehm und Landschaft

Wohnhaus in Weert von De Nieuwe Context

Wohnhaus in Weert von De Nieuwe Context

Ungezwungene Zeitreise

Umbau und Erweiterung eines Londoner Reihenhauses von TYPE

Umbau und Erweiterung eines Londoner Reihenhauses von TYPE

Kompaktes Kleinod

Ferienhaus Casa Plaj in Portugal von Extrastudio

Ferienhaus Casa Plaj in Portugal von Extrastudio

Zweigeteilter Rückzugsort

Umbau eines kleinen Erdgeschossapartments in Paris von atelier apara

Umbau eines kleinen Erdgeschossapartments in Paris von atelier apara

Five-to-nine-Wohnen

Wohnhaus mit Galerie in London von O’Sullivan Skoufoglou Architects

Wohnhaus mit Galerie in London von O’Sullivan Skoufoglou Architects

Patio mit Pool

Neubau mit Backsteinfassade in Katalonien von SIGLA Studio

Neubau mit Backsteinfassade in Katalonien von SIGLA Studio

Kanso in Barcelona

Japanische Wohntraditionen prägen ein Apartment von Miriam Barrio

Japanische Wohntraditionen prägen ein Apartment von Miriam Barrio

Lässig und robust

Anbau mit Terrakottafassade in Los Angeles von Current Interests

Anbau mit Terrakottafassade in Los Angeles von Current Interests