Projekte

Wohnen zwischen den Klimazonen

Apartments für Studierende von EMI Architekt*innen in Regensdorf

In Regensdorf nahe Zürich haben EMI Architekt*innen Teile eines Bürobaus aus den Achtzigerjahren in Apartments für Studierende umgewandelt. Eingestellte Küchen-, Bad- und WC-Elemente dienen als skulpturale Heizkörper und erzeugen eine offene Wohnlandschaft mit unterschiedlich temperierten Bereichen.

von Alexander Russ, 05.03.2026

Das Homeoffice hat sich seit der Coronapandemie in der Breite durchgesetzt. Das gilt auch für die Schweiz – mit entsprechenden Folgen: So stehen im Raum Zürich etwa 400.000 Quadratmeter Bürofläche leer. Ein Lösungsvorschlag besteht in der Umwandlung der ehemaligen Offices in Wohnungen und mittlerweile gibt es erste Projekte, die diese Idee umsetzen. Ein Beispiel ist Das wohltemperierte Haus von EMI Architekt*innen in Regensdorf nahe Zürich. Dort haben die Planerinnen und Planer das 4. Geschoss eines Bürobaus in eine Wohnlandschaft für Studierende transformiert.

Vom Bürobau zum studentischen Wohnhaus
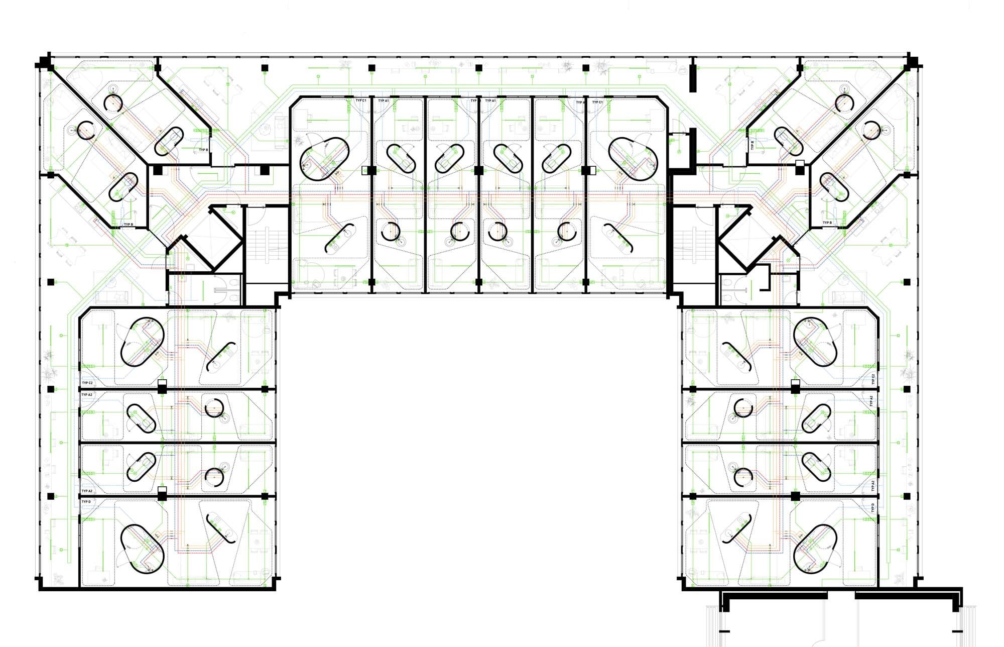
Das Projekt ist Teil einer Quartierskonversion: Auf einem ehemaligen Industrieareal beim Bahnhof Regensdorf-Watt soll ein neuer durchmischter Stadtteil entstehen. Zum Bestand zählt der sogenannte Winkelbau, ein u-förmiges Bürohaus aus den Achtzigerjahren. Die Transformation des Gebäudes in Apartments für Studierende ist zunächst als Zwischennutzung gedacht und soll neue Konzepte erproben. Das betrifft nicht nur die Umnutzung als solche, sondern auch die bauliche Umsetzung: So wurden beispielsweise die Wohnungen im 3. Geschoss vom baubüro in situ im Sinne der Kreislaufwirtschaft geplant. EMI Architekt*innen verfolgten im 4. Geschoss einen Lowtech-Ansatz mit einem emissionsfreien Heizsystem, wie der Architekt Ramin Mosayebi erklärt: „Mit dem Wohltemperierten Haus wollten wir nicht nur möglichst viel Bestand erhalten, sondern auch das Konzept des gleichmäßig temperierten Innenraums von 21 Grad hinterfragen.“

Bewahrung des Bestands
Das Ergebnis ist eine fließende Wohnlandschaft mit unterschiedlichen Temperaturzonen. Bei den insgesamt 18 Apartments mit einer Größe zwischen circa 36 und 56 Quadratmetern handelt es sich um Zellen, die über einen Flur entlang der Fassade erschlossen werden. Er dient als thermische Pufferzone und weitet sich an vier Stellen zu Gemeinschaftsküchen und Arbeitsbereichen aus. Die Bestandsfassade blieb in ihrem ursprünglichen Zustand erhalten, ebenso wie Tragstruktur, Treppenhäuser, Lifte und zwei bestehende Sanitärkerne. EMI Architekt*innen beschränkten sich auf eine räumliche Neuorganisation mit unverputzten Vollgipsplattenwänden in Kombination mit einem reversiblen Innenausbau. Zudem wurden die abgehängten Decken entfernt und die Betondecken des Bestands hellgrau gestrichen.

Ein Bad als Heizkörper
Die Apartments werden über die großzügigen Bandfenster der Bestandsfassade belichtet. Da diese energetisch nicht ertüchtigt wurde, setzen sich die einzelnen Wohnzellen aus wärmenden und kühlenden Bereichen zusammen. Konkret funktioniert das Ganze über Küchen-, Bad- und WC-Elemente, die als skulpturale Körper in die Apartments gestellt sind. Sie zonieren den Raum und schaffen durch ihre Kreisgeometrie fließende Übergänge. Aufgrund ihrer Konstruktion funktionieren sie aber auch wie Kachelöfen. Dabei verfügt jedes Apartment mit einem WC- und einem Duschelement über mindestens zwei dieser Heizkörper. Die größeren Zellen sind mit einem zusätzlichen Küchenelement ausgestattet.

Modell für die Zukunft?
Die Strahlungsenergie der einzelnen Körper erzeugt Wärmeinseln, die den offenen Raum gliedern. Durch aluminiumbeschichtete Vorhänge lässt sich die Strahlungswärme regulieren und das Apartment zusätzlich zonieren. Konstruktiv handelt es sich bei den eingestellten Elementen um vorfabrizierte Stahlmöbel, die mehrschichtig beplankt wurden. Die Metallwände wurden zunächst mit einer Dämmschicht aus Schafwolle versehen. Darauf ist ein Gitter aus Rippenstreckmetall angebracht, an dem man die Heizschlangen befestigt hat. Zudem sind die Wasser-, Heiz- und Elektroleitungen daran angeschlossen. Im nächsten Schritt wurde schichtweise ein vier Zentimeter starker Lehmunterputz auf die Konstruktion aufgetragen. Er dient als Speichermasse, kann aber auch die Luftfeuchtigkeit aufnehmen. Als abschließende Schicht verwendete man einen Lehmdeckputz in der Farbe Sienarot, der den Rotton des Linoleumbodens aufgreift.

Obwohl die Elemente reversibel geplant wurden und aufgrund ihres Eigengewichts keine zusätzliche Verankerung benötigen, verschmelzen sie gestalterisch mit dem Bodenbelag. Die skulpturale Erdung der Körper als Räume im Raum kontrastiert mit der sichtbar belassenen Haustechnik. Deren filigrane Rohre und Schienen erzeugen ein grafisches Bild an Wand und Decke. Gleichzeitig lassen sie sich ohne großen Aufwand reparieren und rückbauen. Das Projekt zeigt deshalb nicht nur auf, wie eine klimatisch sinnvolle Architektur funktionieren kann, sondern lotet auch ihre gestalterischen Möglichkeiten aus. Ob das Modell zukunftstauglich ist, entscheidet eine begleitende Studie an der ETH Zürich unter der Leitung von Elli Mosayebi und Arno Schlüter. Dann wird sich zeigen, welche Möglichkeiten es für zukünftige Umnutzungsprojekte gibt.

Facebook Twitter Pinterest LinkedIn Mail
Projektinfos
Projektname: Das wohltemperierte Haus
Entwurf: EMI Architekt*innen
Bauherr: Anlagestiftung Turidomus, Pensimo Management AG, Zürich
Typologie: Wohnungsbau
Projektart: Studentenwohnen, Umbau und Forschungsprojekt 
Standort: Zwhatt Areal, Regensdorf
Konstruktion: Massivbau
Fläche: 1.353 Quadratmeter
Fertigstellung: 2025
Planungs-und Bauzeit: 2021–2025
Metallbauer: FMT Metallbau AG
Heizung: Hans Brun AG
Gipser: Reinhardt AG
Bauingenieur:  Baertschi Partner Bauingenieure AG, Ehrendingen 
HLS-Planung:  Gruenberg+Partner Planer und Ingenieure AG, Zürich
Elektroplanung:  Elprom Partner AG, Dübendorf
Bauphysik:  Anex Ingenieure AG, Zürich 
Beratung  Prof. Dr. Arno Schlüter, ETH Zürich
Gesamtkosten BKP 1–9: 1.982.200 SFr.
Links

Entwurf

EMI Architekt*innen

EMI Architekt*innen

Mehr Projekte

Haus der Gegensätze

Architektura baut in der Nähe von Prag ein ungewöhnliches Familiendomizil im Wald

Architektura baut in der Nähe von Prag ein ungewöhnliches Familiendomizil im Wald

Holz in Bewegung

Wohnhaus im Tessin mit außergewöhnlichem Parkett

Wohnhaus im Tessin mit außergewöhnlichem Parkett

Brücke zum Meer

Wochenendhaus von Omer Arbel in Kanada

Wochenendhaus von Omer Arbel in Kanada

Ziegel im Zentrum

Umbau eines Siedlerhauses in der Uckermark von Klöpfel Zeimer Architekten

Umbau eines Siedlerhauses in der Uckermark von Klöpfel Zeimer Architekten

Zwischen Erhalt und Erneuerung

Umbau eines Fischerhauses von Bea Portabella und Jordi Pagès in Cadaqueés

Umbau eines Fischerhauses von Bea Portabella und Jordi Pagès in Cadaqueés

Licht im Laub

Wohnhaus mit Anbau von ConForm in London

Wohnhaus mit Anbau von ConForm in London

Renaissance auf Mallorca

Umbau eines historischen Stadtpalais von Nøra Studio

Umbau eines historischen Stadtpalais von Nøra Studio

Zeitlos in Valencia

Balzar Arquitectos gestalten eine Altbauwohnung mit Wabi-Sabi-Ästhetik

Balzar Arquitectos gestalten eine Altbauwohnung mit Wabi-Sabi-Ästhetik

Präziser Eingriff im Bestand

Umbau eines Einfamilienhauses im St. Galler Rheintal von Studio Micha Gamper

Umbau eines Einfamilienhauses im St. Galler Rheintal von Studio Micha Gamper

Neue Freiheit

Umbau eines Madrider Wohnhauses von Extrarradio

Umbau eines Madrider Wohnhauses von Extrarradio

Blaues Herz

Umbau eines Weinguts in Portugal von Arquitectura-G

Umbau eines Weinguts in Portugal von Arquitectura-G

Der Sonne entgegen

Nachhaltiges Einfamilienhaus in Holzrahmenbauweise an der Costa Brava von Clara Crous Arquitectura

Nachhaltiges Einfamilienhaus in Holzrahmenbauweise an der Costa Brava von Clara Crous Arquitectura

Glashaus mit vielen Gesichtern

Kresta Garden House von Lucas y Hernández-Gil bei Madrid

Kresta Garden House von Lucas y Hernández-Gil bei Madrid

Gekonnt gegliedert

Wohnungsumbau von DG Estudio in Valencia

Wohnungsumbau von DG Estudio in Valencia

Platte mit Weitblick

Umbau im Berliner Hochhaus von Christopher Sitzler

Umbau im Berliner Hochhaus von Christopher Sitzler

Bewegung im Rohbau

Achtsamkeitsstudio ANTI im Brandlhuber-Haus in Berlin

Achtsamkeitsstudio ANTI im Brandlhuber-Haus in Berlin

Athener Essenz

Sensible Stadthaus-Modernisierung von Local Local

Sensible Stadthaus-Modernisierung von Local Local

Domestic Dancefloor

Clubkultur in einem Berliner Apartment von Studio Karhard

Clubkultur in einem Berliner Apartment von Studio Karhard

Ein Haus aus Lehm und Landschaft

Wohnhaus in Weert von De Nieuwe Context

Wohnhaus in Weert von De Nieuwe Context

Ungezwungene Zeitreise

Umbau und Erweiterung eines Londoner Reihenhauses von TYPE

Umbau und Erweiterung eines Londoner Reihenhauses von TYPE

Kompaktes Kleinod

Ferienhaus Casa Plaj in Portugal von Extrastudio

Ferienhaus Casa Plaj in Portugal von Extrastudio

Zweigeteilter Rückzugsort

Umbau eines kleinen Erdgeschossapartments in Paris von atelier apara

Umbau eines kleinen Erdgeschossapartments in Paris von atelier apara

Five-to-nine-Wohnen

Wohnhaus mit Galerie in London von O’Sullivan Skoufoglou Architects

Wohnhaus mit Galerie in London von O’Sullivan Skoufoglou Architects

Patio mit Pool

Neubau mit Backsteinfassade in Katalonien von SIGLA Studio

Neubau mit Backsteinfassade in Katalonien von SIGLA Studio

Kanso in Barcelona

Japanische Wohntraditionen prägen ein Apartment von Miriam Barrio

Japanische Wohntraditionen prägen ein Apartment von Miriam Barrio

Lässig und robust

Anbau mit Terrakottafassade in Los Angeles von Current Interests

Anbau mit Terrakottafassade in Los Angeles von Current Interests

Lauschendes Alpenchalet

Maison Osaïn verwandelt eine historische Berghütte in Italien

Maison Osaïn verwandelt eine historische Berghütte in Italien

Neuanfang durch Wiederaufbau

Transformation eines Einfamilienhauses in Slowenien von OFIS

Transformation eines Einfamilienhauses in Slowenien von OFIS

Auf alles vorbereitet

Wohnanlage mit flexiblen Grundrissen von STAR strategies + architecture

Wohnanlage mit flexiblen Grundrissen von STAR strategies + architecture

Bauhaus-Comeback in Budapest

Umbau einer Dreißigerjahre-Wohnung von Sarolta Hüttl

Umbau einer Dreißigerjahre-Wohnung von Sarolta Hüttl