Projekte

Platte mit Weitblick

Umbau im Berliner Hochhaus von Christopher Sitzler

Bereits zum zweiten Mal zeigt Christopher Sitzler die Gestaltungsmöglichkeiten, die ein Plattenbau bieten kann. Fünf Jahre nach seinem ersten Projekt in diesem Gebäudetypus verwandelte der Berliner Architekt eine kleinteilige Wohnung in ein großzügiges Loft – mit einer blauen Überraschung.

von Annette Schimanski, 16.02.2026

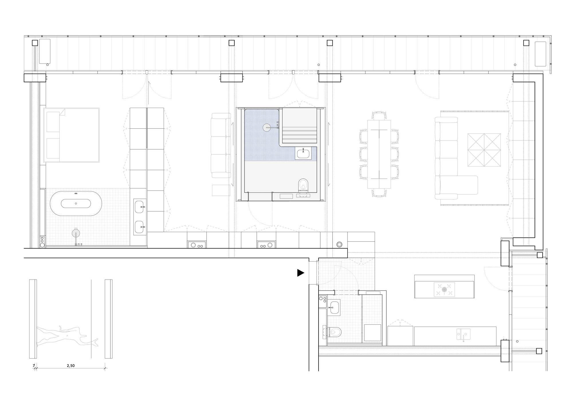
Im Jahr 2020 setzte der Architekt Christopher Sitzler mit der Modernisierung seiner eigenen Wohnung ein Statement: Er verwandelte ein verschachteltes Apartment in einem Berliner Plattenbau entlang der Leipziger Straße in ein weitläufiges Betonunikat voller Designklassiker. Nun wünschte sich der Eigentümer einer 150 Quadratmeter großen Wohnung, die nur wenige Stockwerke darüber in dem 1976 erbauten Gebäude liegt, eine ähnliche Transformation. Sein Apartment war einst aus dem Zusammenschluss von zwei kleineren Parteien entstanden und wies eine Aneinanderreihung mehrerer Räume entlang der Fensterfront auf. Der Umbau sollte das Gegenteil erreichen: Weite, Tageslicht, Stauraum und großzügige Flächen mit Aufenthaltsqualität.

Minimalistische Horizontalität
Die Wohnung wurde komplett entkernt und mit einer neuen Raumaufteilung versehen. Der Eingangsbereich geht jetzt über in einen großzügigen Koch-, Wohn- und Essbereich, ergänzt durch ein kleines Badezimmer. Dort zeigt sich direkt ein großer Vorteil des Plattenbaus, der laut Christopher Sitzler kontrovers diskutiert wird: Durch eine eher geringe Deckenhöhe liegt die Qualität in der horizontalen Weite der Räumlichkeiten. Den häufig gewünschten Altbaucharme mit vertikaler Offenheit sucht man vergebens. Dafür unterstreicht die waagerechte Anordnung bei diesem Projekt die Aussicht durch die nach Westen orientierte Verglasung, die eine komplette Seite der Wohnung einnimmt.

Das weite Raumgefühl wird unterstrichen von Spiegeln an einer Wand, die den zentralen Aufenthaltsbereich sowie den Ausblick reflektieren. Sie lassen diesen Teil der Wohnung wie einen minimalistischen Ballsaal wirken, in dem Feierlichkeiten stattfinden könnten. Der Minimalismus wird durch die restlichen Wände betont, die in Weiß gehalten sind. Der Auftraggeber brachte Visionen aus seinem beruflichen Umfeld mit: Als Galerist wünschte er sich Flächen für Kunstwerke.

Wellness im Kabinenformat
Der Übergang zum privaten Bereich wird zum einen durch eine Edelstahlbox gekennzeichnet, zum anderen können Schiebetüren aus demselben Werkstoff für eine noch striktere Trennung sorgen. Innerhalb der Box befindet sich eine Infrarotsauna, die mit dunkelblauen, kleinformatigen Fliesen ausgestattet ist. Die Farbe nimmt Bezug auf die blauen Fassadenelemente des Hochbaukomplexes in der Leipziger Straße. Ein Rundfenster, das an ein Bullauge erinnert, ermöglicht den Blick nach draußen und weckt, im Zusammenspiel mit dem tiefen Blau des Mosaiks, maritime Assoziationen. Die dunkle Innenverkleidung der Box bildet außerdem einen spannenden Kontrast zu der hellen Weite der restlichen Wohnung.

Eine lange Reihe von Einbauten, umgesetzt vom Tischler Ilias Lefas, weist den Weg in das restliche Apartment, das über einen weiteren Wohnbereich verfügt. Er dient als Rückzugsort und führt letztendlich in das Schlafzimmer. Dort ist ein offener, weiß gefliester Bad- und Duschbereich integriert – ein Wunsch des Auftraggebers, der sich vom Schlafbereich in Sitzlers Wohnung inspirieren ließ.

Erhalt und Erneuerung
Wie bereits beim Umbau seines eigenen Apartments konnte Christopher Sitzler auch bei diesem Projekt feststellen, dass die Gestaltungsmöglichkeiten innerhalb eines Plattenbaus vielfältig sind und unterschiedliche, sehr individuelle Grundrissvariationen zulassen. Einen der größten Vorteile sieht der Architekt darin, die Räume in die heutige Zeit holen zu können, ohne die Historie und Substanz des Bestandsgebäudes außer Acht zu lassen.

Facebook Twitter Pinterest LinkedIn Mail
Projektinfos
Projektname 043LEI
Entwurf Christopher Sitzler
Ort Berlin, Leipziger Straße
Fläche 150 Quadratmeter
Fertigstellung 2025
Tischler Ilias Lefas
Metallbauer IRDEN
Links

Entwurf

Christopher Sitzler

sitzler.info

Mehr Projekte

Ziegel im Zentrum

Umbau eines Siedlerhauses in der Uckermark von Klöpfel Zeimer Architekten

Umbau eines Siedlerhauses in der Uckermark von Klöpfel Zeimer Architekten

Zwischen Erhalt und Erneuerung

Umbau eines Fischerhauses von Bea Portabella und Jordi Pagès in Cadaqueés

Umbau eines Fischerhauses von Bea Portabella und Jordi Pagès in Cadaqueés

Licht im Laub

Wohnhaus mit Anbau von ConForm in London

Wohnhaus mit Anbau von ConForm in London

Renaissance auf Mallorca

Umbau eines historischen Stadtpalais von Nøra Studio

Umbau eines historischen Stadtpalais von Nøra Studio

Zeitlos in Valencia

Balzar Arquitectos gestalten eine Altbauwohnung mit Wabi-Sabi-Ästhetik

Balzar Arquitectos gestalten eine Altbauwohnung mit Wabi-Sabi-Ästhetik

Präziser Eingriff im Bestand

Umbau eines Einfamilienhauses im St. Galler Rheintal von Studio Micha Gamper

Umbau eines Einfamilienhauses im St. Galler Rheintal von Studio Micha Gamper

Neue Freiheit

Umbau eines Madrider Wohnhauses von Extrarradio

Umbau eines Madrider Wohnhauses von Extrarradio

Wohnen zwischen den Klimazonen

Apartments für Studierende von EMI Architekt*innen in Regensdorf

Apartments für Studierende von EMI Architekt*innen in Regensdorf

Blaues Herz

Umbau eines Weinguts in Portugal von Arquitectura-G

Umbau eines Weinguts in Portugal von Arquitectura-G

Der Sonne entgegen

Nachhaltiges Einfamilienhaus in Holzrahmenbauweise an der Costa Brava von Clara Crous Arquitectura

Nachhaltiges Einfamilienhaus in Holzrahmenbauweise an der Costa Brava von Clara Crous Arquitectura

Glashaus mit vielen Gesichtern

Kresta Garden House von Lucas y Hernández-Gil bei Madrid

Kresta Garden House von Lucas y Hernández-Gil bei Madrid

Gekonnt gegliedert

Wohnungsumbau von DG Estudio in Valencia

Wohnungsumbau von DG Estudio in Valencia

Bewegung im Rohbau

Achtsamkeitsstudio ANTI im Brandlhuber-Haus in Berlin

Achtsamkeitsstudio ANTI im Brandlhuber-Haus in Berlin

Athener Essenz

Sensible Stadthaus-Modernisierung von Local Local

Sensible Stadthaus-Modernisierung von Local Local

Domestic Dancefloor

Clubkultur in einem Berliner Apartment von Studio Karhard

Clubkultur in einem Berliner Apartment von Studio Karhard

Ein Haus aus Lehm und Landschaft

Wohnhaus in Weert von De Nieuwe Context

Wohnhaus in Weert von De Nieuwe Context

Ungezwungene Zeitreise

Umbau und Erweiterung eines Londoner Reihenhauses von TYPE

Umbau und Erweiterung eines Londoner Reihenhauses von TYPE

Kompaktes Kleinod

Ferienhaus Casa Plaj in Portugal von Extrastudio

Ferienhaus Casa Plaj in Portugal von Extrastudio

Zweigeteilter Rückzugsort

Umbau eines kleinen Erdgeschossapartments in Paris von atelier apara

Umbau eines kleinen Erdgeschossapartments in Paris von atelier apara

Five-to-nine-Wohnen

Wohnhaus mit Galerie in London von O’Sullivan Skoufoglou Architects

Wohnhaus mit Galerie in London von O’Sullivan Skoufoglou Architects

Patio mit Pool

Neubau mit Backsteinfassade in Katalonien von SIGLA Studio

Neubau mit Backsteinfassade in Katalonien von SIGLA Studio

Kanso in Barcelona

Japanische Wohntraditionen prägen ein Apartment von Miriam Barrio

Japanische Wohntraditionen prägen ein Apartment von Miriam Barrio

Lässig und robust

Anbau mit Terrakottafassade in Los Angeles von Current Interests

Anbau mit Terrakottafassade in Los Angeles von Current Interests

Lauschendes Alpenchalet

Maison Osaïn verwandelt eine historische Berghütte in Italien

Maison Osaïn verwandelt eine historische Berghütte in Italien

Neuanfang durch Wiederaufbau

Transformation eines Einfamilienhauses in Slowenien von OFIS

Transformation eines Einfamilienhauses in Slowenien von OFIS

Auf alles vorbereitet

Wohnanlage mit flexiblen Grundrissen von STAR strategies + architecture

Wohnanlage mit flexiblen Grundrissen von STAR strategies + architecture

Bauhaus-Comeback in Budapest

Umbau einer Dreißigerjahre-Wohnung von Sarolta Hüttl

Umbau einer Dreißigerjahre-Wohnung von Sarolta Hüttl

Zwischen Himmel und Holz

Dachbodenausbau von studio franz und coco in den Schweizer Bergen

Dachbodenausbau von studio franz und coco in den Schweizer Bergen

Mit Hang zur Höhe

Wohnhaus auf kleiner Fläche in Unterfranken von ToB.Studio

Wohnhaus auf kleiner Fläche in Unterfranken von ToB.Studio

Pleats please!

Das W House in London von Bureau de Change

Das W House in London von Bureau de Change