Projekte

Im Geist der Vergangenheit

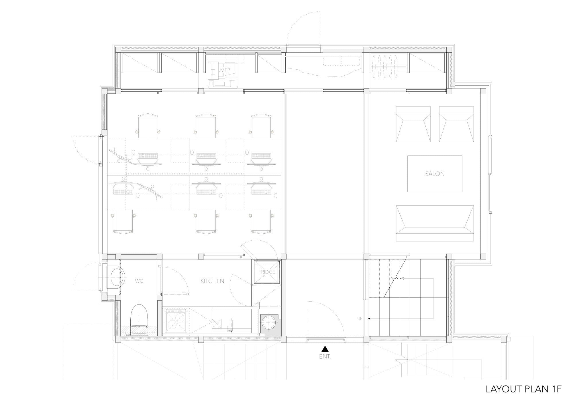
Neugestaltung einer Bürofläche in Tokio von Symbolplus

Im ehemaligen Tokioter Wohnhaus von Akio Hayashi verwandelte das Architekturbüro Symbolplus 67 Quadratmeter in ein Office – als Hommage an den japanischen Pionier des nachhaltigen Bauens. Viel Holz, recyceltes Washi-Papier und präzise Eingriffe führen die Räume behutsam in die Zukunft.

von Tanja Pabelick, 23.03.2026

Schon lange bevor der Diskurs über nachhaltige Architektur, lokale Bauweisen oder zirkuläre Ressourcen vom Nischenthema zur Planungsmaxime wurde, arbeitete der japanische Architekt Akio Hayashi in den Achtziger- und Neunzigerjahren bevorzugt mit natürlichen, am Bauort verfügbaren Materialien. In Tokio war und ist das vor allem Holz.

In das ehemalige Wohnhaus Hayashis im Stadtteil Suginami ist nun eine neue Generation von Planenden eingezogen. Das 2022 von Sho Watanabe und Satoshi Nobekawa gegründete Architekturbüro Symbolplus hat sich der Mission verschrieben, stets mit Demut vor dem Bestand zu planen und die Identität der vorgefundenen Räumlichkeiten herauszuarbeiten. „Dieser Prozess ähnelt der Herstellung von Keramik: Die ursprünglichen Eigenschaften der Materialien und des Umfelds werden entschlüsselt und gestalterisch zum Ausdruck gebracht. So entstehen Räume, die in ihrer jeweiligen örtlichen Verankerung unverwechselbar sind“, beschreibt das Duo seine Arbeitsweise.

Verneigung vor der Geschichte
Bei der Modernisierung und dem Umbau des ikonischen Architektenwohnhauses zum Büro galt es, Vorhandenes zu erhalten und seine Kontinuität anzustreben. Hayashi hatte seine Innenräume einst vollständig in Holz gefasst, von den Deckenbalken über die Wandverkleidungen und Türen bis zu den Einbaumöbeln. Synthetische Materialien wurden konsequent vermieden, Raumteiler und Fenstersichtschutz aus Washi-Papier gefertigt.

Der ursprüngliche Ausbau war jedoch in die Jahre gekommen und wirkte im Spiegel eines aktuellen Ästhetikverständnisses eher rustikal. Mit wenigen Interventionen, die die Architektursprache, die Bauzeit und die Materialwahl respektieren, überführten die Architekt*innen von Symbolplus das Haus in eine neue Ära. Im Zentrum stand dabei die Transformation von einer Wohn- zu einer Arbeitsnutzung, bei der wohnliche Qualitäten bewahrt, aber auch Fokus und Austausch gefördert werden sollten. „Das Büro wird zu einem Ort, an dem sich Arbeit still entfaltet“, sagen die Gestalter*innen. „Es ist geprägt von seinem architektonischen Kontext, statt ihm aufgezwungen zu werden.“

Hinter papiernen Membranen
Zunächst öffnete das Team von Symbolplus die 67 Quadratmeter große Fläche auf zwei Etagen und baute die Räume auf ihr Holzskelett zurück. Anschließend wurde das neue Layout mit minimalinvasiven und materialehrlichen Lösungen umgesetzt. Einige der Außenwände sind jetzt verputzt, stehen mit einer farblich auf das Holz abgestimmten Nuance aber im Einklang mit dem Bestand. Dafür nutzten die Handwerker*innen rote Erde aus der Präfektur Ishikawa, die in mehreren Schichten aufgetragen wurde.

Die raumtrennenden Elemente folgen einer traditionellen Bauweise, bestehen aus feinen Holzrahmen und sind mit mehrlagigem, wiederverwertetem Washi-Papier bespannt. Sie wirken wie eine Membran, filtern das Licht diffus und sind leicht verschiebbar, um den Raum zu öffnen oder Bereiche abzuschirmen. Die Paneele trennen nicht nur die Schreibtische optional vom kommunikativen und gemeinschaftlichen Bereich des sogenannten „Salons“ ab, sondern verbergen auch Stauraum und Technik, wie den großen Multifunktionsdrucker, der bei Nichtbenutzung einfach hinter den auf Holzschienen gleitenden Papierwänden verschwindet.

Auf leisen Schienen
Das Lichtkonzept zeigt, wie spielerisch und zugleich sensibel die Planenden mit dem Erbe des Hauses und seines Architekten umgehen. Unter deckenmontierten Strahlern schweben Shoji-Paneele, die mit mehreren Lagen Washi-Papier bespannt sind. Zentral an einem hölzernen Drehgelenk gelagert, lassen sie sich schwenken. Bei hohem Lichtbedarf geben sie die Spots frei, während sie in waagerechter Position die punktuellen Lichtquellen in einen homogenen Lichthimmel verwandeln, der seitlich in die indirekt beleuchteten Wände übergeht. „Diese Details sind keine nostalgischen Gesten“, so Sho Watanabe und Satoshi Nobekawa. „Es sind funktionale Systeme, die es dem Büro erlauben, sich im Tagesverlauf atmosphärisch anzupassen.“

Auch die Raumstruktur folgt dieser Dynamik: Auf Schienen gelagerte Wände öffnen und schließen die Bereiche, schaffen Rückzugsorte oder ein fließendes Layout. So wird das Interieur von Rhythmus, Geometrie und Licht bestimmt – eine Verbeugung vor Akio Hayashi und seiner ästhetischen Intention, die in der Vergangenheit wurzelt und zugleich in die Zukunft weist.

Facebook Twitter Pinterest LinkedIn Mail
Links

Entwurf

Symbolplus

symbol-plus.com

Mehr Projekte

Roter Riese

In Odense wurde das größte Holzbürohaus Dänemarks bezogen

In Odense wurde das größte Holzbürohaus Dänemarks bezogen

Neue Welt in altem Gewand

Blomus Headquarter in Sundern

Blomus Headquarter in Sundern

Kulturaffine Büro-WG

Neues Office von Kinzo und Karsten Jahnke in Hamburg

Neues Office von Kinzo und Karsten Jahnke in Hamburg

Flurfunk und Fernsehturmblick

Tech-Büro im Haupttelegrafenamt Berlin von de Winder

Tech-Büro im Haupttelegrafenamt Berlin von de Winder

Raum mit Reserven

Umbau von YONT Studio für das Musiklabel Seven in Berlin

Umbau von YONT Studio für das Musiklabel Seven in Berlin

Flexible Arbeitslandschaft am Hafen

Umbau der Maersk-Zentrale in Rotterdam

Umbau der Maersk-Zentrale in Rotterdam

Schlichte Bühne für starke Bilder

Fotostudio-Interieur von Sapid Studio in Genf

Fotostudio-Interieur von Sapid Studio in Genf

Umbau mit Gütesiegel

Neue Arbeitswelt für den TÜV-Verband in Berlin

Neue Arbeitswelt für den TÜV-Verband in Berlin

Vertikal verbunden

Neues Headquarter der Publicis Groupe in Shanghai von Ippolito Fleitz

Neues Headquarter der Publicis Groupe in Shanghai von Ippolito Fleitz

Vertikal, vernetzt, und verantwortungsvoll

Hochhausensemble FOUR in Frankfurt von UNStudio

Hochhausensemble FOUR in Frankfurt von UNStudio

Lieblingsplatz mit Tiefgang

Lepel & Lepel bauen eine Büroetage im Duisburger H2 Office um

Lepel & Lepel bauen eine Büroetage im Duisburger H2 Office um

Neu aufgegleist

Umnutzung eines Ringlokschuppens in Osnabrück von Kresings

Umnutzung eines Ringlokschuppens in Osnabrück von Kresings

Alte Schule

Wohnlicher Co-Working-Space in London von Daytrip

Wohnlicher Co-Working-Space in London von Daytrip

Ab ins Beet

Bürolandschaft in Japan von DDAA für Kokuyo

Bürolandschaft in Japan von DDAA für Kokuyo

Arbeiten im Penthouse

RHO gestaltet das neue Headquarter von Design Hotels in Berlin

RHO gestaltet das neue Headquarter von Design Hotels in Berlin

Ganz der Kunst gewidmet

Atelier für eine Malerin in Germantown von Ballman Khapalova

Atelier für eine Malerin in Germantown von Ballman Khapalova

Kreative Transformationen

Nachhaltiges Bauen mit regionalen Ressourcen und innovativen Produkten von JUNG

Nachhaltiges Bauen mit regionalen Ressourcen und innovativen Produkten von JUNG

Lebendiges Labor

Umbau einer Büroetage zum dynamischen Testumfeld

Umbau einer Büroetage zum dynamischen Testumfeld

Mehr Stimmung als Stromverbrauch

Innovative Beleuchtung von Fagerhult im Bol-Headquarter

Innovative Beleuchtung von Fagerhult im Bol-Headquarter

Architektur zum Anbeissen

MoDusArchitects verwandeln das Loacker-Flaggschiff in Heinfels in eine räumliche Erlebniswelt

MoDusArchitects verwandeln das Loacker-Flaggschiff in Heinfels in eine räumliche Erlebniswelt

Ein Office für alle Fälle

Ippolito Fleitz Group und Brunner gestalten den Beiersdorf Campus in Hamburg

Ippolito Fleitz Group und Brunner gestalten den Beiersdorf Campus in Hamburg

Charlottenburger Altbau(t)räume

Office Space von BBPA am Berliner Fasanenplatz

Office Space von BBPA am Berliner Fasanenplatz

Vom Altar zum Arbeitsplatz

Büroumbau in ehemaliger Kirche mit Einrichtungslösungen von Kinnarps

Büroumbau in ehemaliger Kirche mit Einrichtungslösungen von Kinnarps

Arbeiten wie aus einem Guss

Fellowes stattet elf ergonomische Arbeitsplätze in der Hamburger Speicherwerkstatt aus

Fellowes stattet elf ergonomische Arbeitsplätze in der Hamburger Speicherwerkstatt aus

Inspirationen am Fleet

Neu gestalteter Showroom von Kinnarps in Hamburg

Neu gestalteter Showroom von Kinnarps in Hamburg

Eine Stadt aus Räumen

Kollaborativer Arbeitsort von Alberto Hueso in Spanien

Kollaborativer Arbeitsort von Alberto Hueso in Spanien

Tabula Casa

Die inspirierenden Studioräume von Nerea Apraiz in Bilbao

Die inspirierenden Studioräume von Nerea Apraiz in Bilbao

Nachhaltig auf allen Ebenen

Intelligente Lichtlösungen für den Bürokomplex Tripolis-Park in Amsterdam

Intelligente Lichtlösungen für den Bürokomplex Tripolis-Park in Amsterdam

Arbeiten in neuem Licht

BOS hat das eyeo-Büro in Berlin als Stadtrundgang inszeniert

BOS hat das eyeo-Büro in Berlin als Stadtrundgang inszeniert

Architekturwandel an der Alster

Umbau der BAT-Hauptverwaltung in Hamburg durch Ratschko Architekten

Umbau der BAT-Hauptverwaltung in Hamburg durch Ratschko Architekten