Surferträume im Reihenhaus
Umbau eines Sechzigerjahre-Wohnhauses in Norwegen von Smau Arkitektur

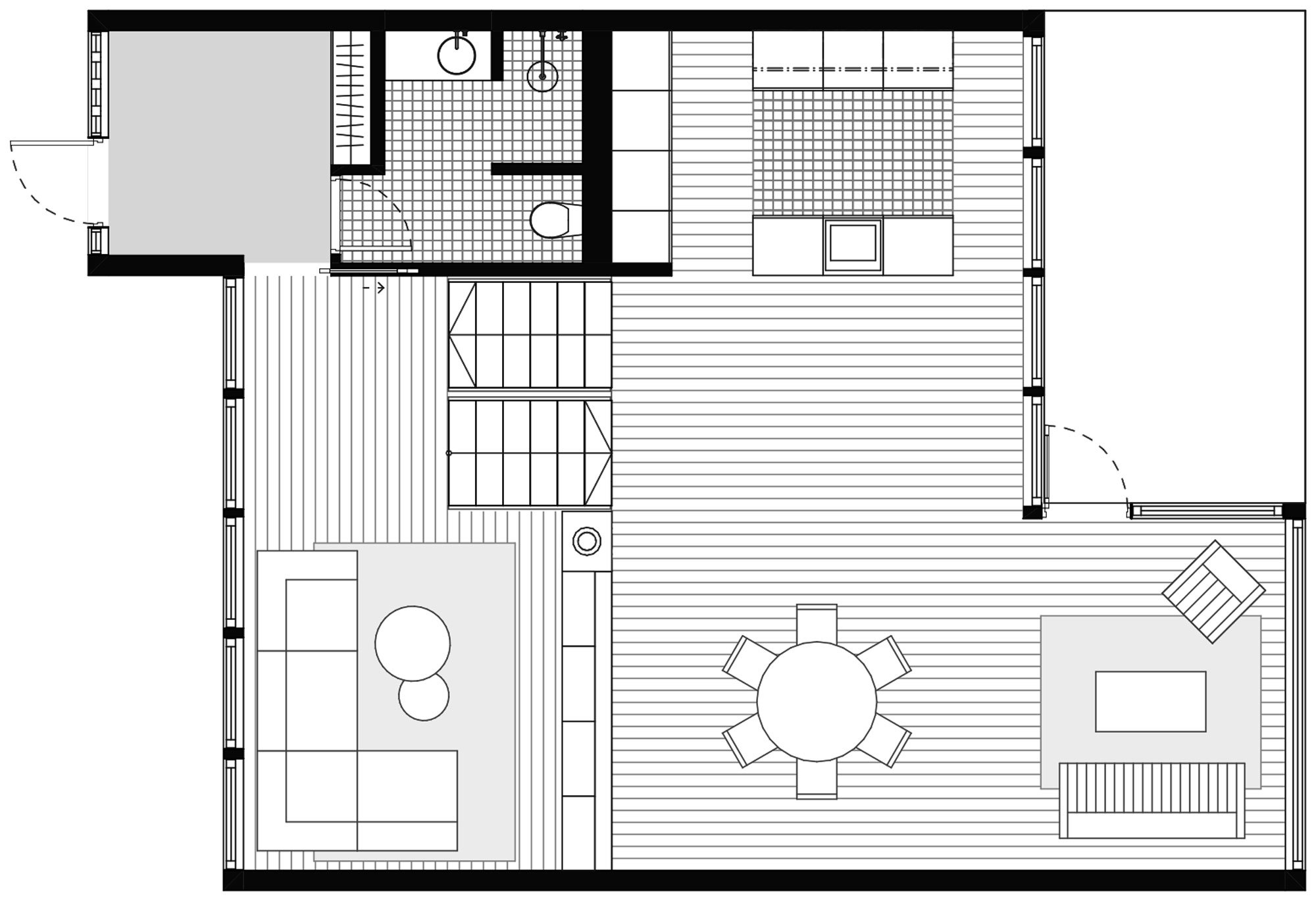
An einem See bei Stavanger wurde ein Reihenhaus aus den 1960er-Jahren neu gedacht. Smau Arkitektur öffnete den kleinteiligen Grundriss und schuf eine moderne Wohnlandschaft, deren blaue Küche vom Meer inspiriert ist.
Der Stora Stokkavatnet liegt am Stadtrand der norwegischen Stadt Stavanger, umgeben von sanften Hügeln, Wäldern und Wiesen. Wasser und Grün verschmelzen zu einer fjordartigen Landschaft. Ende der 1960er-Jahre entstanden dort Reihenhäuser, die sich zum See und der Natur öffnen sollten. Rund sechs Jahrzehnte später erwarb ein Bauherr eines der Reihenhäuser und beauftragte Smau Arkitektur mit dessen Umgestaltung.
Die erste Aufgabe für die Architekt*innen bestand darin, die kleinteilige Grundrissstruktur der Sechzigerjahre zu öffnen und in eine großzügigere Raumabfolge zu übersetzen. Mehr Tageslicht und fließende Übergänge sollten das Haus prägen, ohne dabei seinen ursprünglichen Charakter zu verlieren. So entstand auf rund 100 Quadratmetern eine Wohnlandschaft, die den Bestand respektiert und zugleich zeitgemäß wirkt.
Eine Küche in Blau
Im Zentrum des Entwurfs steht die offene blaue Küche, die von Smau Arkitektur geplant wurde. Gefertigt hat sie der auf maßgefertigte Küchen spezialisierte Handwerksbetrieb Hamran Snekkerverksted. Ihr Korpus besteht aus astfreier norwegischer Kiefer, deren Maserung sichtbar bleiben sollte, um die Natürlichkeit des Materials zu betonen. Nach zahlreichen Farbmuster-Tests fiel die Wahl schließlich auf den Ton Helsinki, eine nachhaltige Leinölfarbe des dänischen Herstellers Linolie & Pigment. Er ist inspiriert von den Wellen der Jæren-Küste in Südwestnorwegen, wo der Bauherr als Surfer einen großen Teil seiner Freizeit verbringt.
Die Bearbeitung des Holzes stellte eine besondere Herausforderung dar, weil Splint- und Kernholz Öl sehr unterschiedlich aufnehmen. Durch angepasste Auftragstechniken entstand daher ein Farbton, der je nach Lichteinfall zwischen dunklen und hellen Nuancen changiert. Kühlschrank, Vorräte und Geräte verschwinden in raumhohen Einbauten, die in der Wandfarbe lackiert sind und so dezent im Hintergrund bleiben.
Die Arbeit mit der Leinölfarbe verlangte große Sorgfalt. Jede Holzpartie reagiert individuell, jede Schicht verändert Transparenz und Tiefe. Das finale Finish verleiht dem Raum heute seine besondere Atmosphäre.
Holz in der Hauptrolle
Neben Kiefernholz kam beim Umbau vor allem Douglasie zum Einsatz. Sie bestimmt Decken und Böden, schafft eine ruhige Atmosphäre und führt die Geschosse zu einer gestalterischen Einheit zusammen. Die Farbwelt des Interiors bleibt insgesamt zurückhaltend, wird jedoch durch gezielte Akzente belebt – allen voran das Blau der Küche. Ergänzt wird die Innenausstattung durch Armaturen von Vola, Leuchten von Flos und Verpan sowie unsichtbar integrierte LEDs.
Zeitreise mit Wellengang
Meer und Küste dienten aber nicht nur als Inspiration bei der Farbwahl, sondern bestimmen auch die räumliche Logik. Wie eine Welle entfaltet sich das Raumprogramm in einer kontinuierlichen Bewegung vom Eingang bis zur Terrasse. Smau Arkitektur ist es gelungen, beim Umbau die Architektursprache der 1960er-Jahre sensibel aufzugreifen und sie in eine zeitgemäße Wohnkultur zu übersetzen.
FOTOGRAFIE Einar Aslaksen
Einar Aslaksen
Mehr Projekte
Ästhetik trifft Funktion
Küchenoberflächen und -materialien im Fokus

Zwischen Alt und Neu
Architect George erweitert Jahrhundertwendehaus in Sydney

Messingfarbene Highlights
Neugestaltung des Hotels zum Hirschen in Salzburg von LP architektur und Dietrich Untertrifaller

Kontrapunkt zwischen alten Mauern
Umbau zum urbanen Wohnhaus von Architect George in Sydney

Ausgewählte Zutaten
Sechs Küchenprojekte mit geschmackvollen Materialien

Sportliche Erfrischung
Neuer DFB-Campus in Frankfurt am Main von kadawittfeldarchitektur

Monolith am Mittelmeer
Moderne Küche in einem sizilianischen Landhaus

Umbau mit Bedacht
Renovierung eines denkmalgeschützten Architektenhauses bei Antwerpen

Alles auf Farbe
Wohnungsumbau in Almaty von Sdelaemremont

Besondere Böden
Fünf Projekte mit ungewöhnlicher Bodengestaltung

Moderne Großstadtküchen
Fünf außergewöhnliche Projektbeispiele

Eine runde Sache
Dries Otten baute in Belgien eine Stadtwohnung um

Belebter Backstein
Mehrfamilienhaus in ehemaliger Textilfabrik in Melbourne

Bunter Community-Space
kupa Kitchen & Working Lounge von Stephanie Thatenhorst in München

Gestaffeltes Wohnhaus
Umbau einer kleinen Genter Stadtvilla von Graux & Baeyens Architecten

Tiroler Putz in Madrid
Atelier- und Wohnhaus Blasón von Burr Studio

Ziegelstein und Hefe
Hannes Peer gestaltete die Bäckerei Signor Lievito in Mailand

Dialog der Gegensätze
Umbau einer Drei-Zimmer-Wohnung in Brooklyn

Beton trifft Reet
Farmhaus von NORRØN im dänischen Haderslev

Küche als Ort der Begegnung
Erweiterung eines Wohnhauses aus den Dreißigerjahren

Beton auf allen Ebenen
Brutalistischer Anbau von McLaren Excell in London

Multifunktionales Penthouse
Loft in München von allmannwappner

Recycelter Anbau
Subtile Erweiterung eines viktorianischen Wohnhauses in London

Whisky im Pantheon
Eine Sichtbeton-Destillerie von Neri&Hu in China

Bewohnter Adventskalender
Lenka Míková Architekti gestaltet ein Prager Apartment

Vermeers Backstube
Brotmanufaktur Aera von Gonzalez Haase AAS in Berlin

Küche mit Aussicht
Intelligenter Anbau von Material Works in London

Mut zur Maserung
Die schönsten Interiors mit Holz

Ode an die Natur
Restaurant Lunar in Shanghai von Sò Studio

Schiffscontainer im Garten
Umgestaltung eines Londoner Reihenhauses von DEDRAFT
